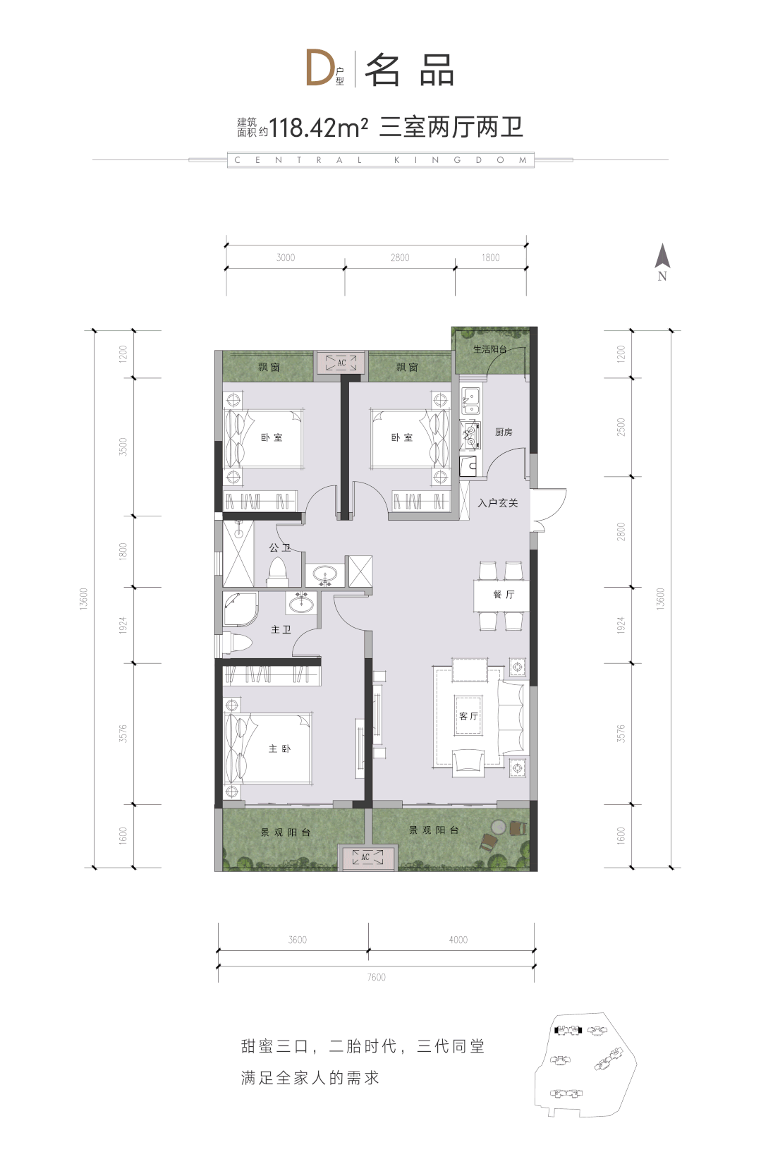
约118m²舒居三房|每一平米,都是理想的栖息地
扫描到手机,新闻随时看
扫一扫,用手机看文章
更加方便分享给朋友
美好,是每一位居者对生活的向往与期望。
一直以来,利都·中环名座不断探索研磨营造更美好的品质生活,精研岳阳城市中坚力量的需求,我们希望通过户型精细化体系打破单一生活模式,满足全龄段的生活观念和居住模式,以及不同场景背后的本质需求和未来期待,集空间感、通透感、阳光感、舒适感为一体,利都·中环名座约118m²舒居三房,敬献城芯舒居标杆。

生活里的诗与远方,在于对窗外的美好追寻。阳台与飘窗,引清风与阳光浸润,为居者提供了一处“偷得余生半日闲”的好去处,最能给人增添生活中的幸福感。约118m²舒居三房,以超乎想象的“3阳台+2飘窗”品质奢享,让生活的每一面都是景观面。

南向2处景观阳台:
阳光触手可及的地方,满足一家人的美好向往,太太种花莳草、先生品茗赏景、孩子自在玩耍。同时,阳台上可放置跑步机、书桌、茶吧等,让居者尽情享受生活的惬意。

北向生活阳台与厨房相连:
可放置洗衣机、烘干机等居家琐碎品,集洗、晾、储于一体,居家更加整洁舒适;同时,厨房的感官面积变得更大,太太在大展厨艺时,先生也能帮忙洗、切准备。
北向双卧均配飘窗:
繁星点点的夜晚,或是儿童房飘窗,积木、娃娃等玩具放置的地方,也是孩子观望星星的平台;或是书房飘窗,则是丈夫灵感迸发的源泉;又或者是家人的健身房、练琴室飘窗,窗外的风景参与到室内尽情上演生活的美好。


客厅,已不仅仅是一个简单的功能空间,它同样承载了对理想居所美好生活的无限期待。

约118m²舒居三房的客厅,以多拓展20厘米的奢阔开间,为家庭成员营造更大想象的空间。①较大化节省过道面积,更多空间纳入客厅范围,为家具自由增添摆放创造了更多想象;②更阔绰的客厅,会晤亲友,尽显气派;家人互动,亲密有爱,妻子练习插花、父母阅读报纸、孩子们嬉戏追逐;③约4m宽厅连接南向大阳台的空间拓展,让居者不用跨出客厅,园林的美景尽收眼底。


作为重塑岳阳城芯人居标杆的封面作品,利都·中环名座懂得城市中坚力量对于精细化生活的考究,对于舒适度格外关照。约118m²舒居三房,从细节处一目了然。

尊崇入户玄关:
独立玄关空间设计,兼具功能性与美观度。从功能上来说,雨伞、球具、鞋子等尽可存放;从美观度来说,收纳将一切杂物悄然隐藏,创造了一个干净整洁的空间。

便捷双卫设计:
南向套房式主卧内的卫生间,便利性与隐私性并存,让主人行动自如;
公共卫生间,相对于次卧、生活区(厨餐)、活动区(客厅)而言,是既与之相邻又独立,干湿分离人性化设计,同时充分利用空间做到了储物功能。

动静分离格局:
动静分离,互不干扰。动区,餐客厅南向连接阳台,与厨房独立且相连,为女主人照待朋友提供了一片天地;静区,套房式主卧与两个次卧相连且独立,营造了一片舒适静谧的氛围,孩子学习、男主人休憩或是忙碌工作都不受打扰。

家不是居住的容器,而是情感的载体。利都·中环名座将对中坚力量生活的洞察融入产品设计中,以约118m²舒居三房赋予理想人居更多可能,通过对居住空间的探索,构筑岳阳城芯标杆人居。不仅是尺度、动线布局、人性化细节的突破,更是空间舒适度的整体升级,让每一平方米都是美好生活的模样。

声明:本文由入驻焦点开放平台的作者撰写,除焦点官方账号外,观点仅代表作者本人,不代表焦点立场。
