阳光地下室|让光线做设计,在地下室享受追光之旅
扫描到手机,新闻随时看
扫一扫,用手机看文章
更加方便分享给朋友
“日后她在地下室写下自己的故事,她发誓自己永远不再喝香槟,因为香槟的滋味永远没有办法像那个七月温暖的午后,如此美好。”
——马克斯·苏萨克《偷书贼》
光,孕育了生命的起源,创造了万物。
因为光,所有的色彩都有了温度,我们对世界的感知,多半来源于此。
英国著名建筑师罗杰斯说:“建筑是捕捉光的容器,就如同乐器如何捕捉音乐一样,光需要可以使其展示的建筑。”
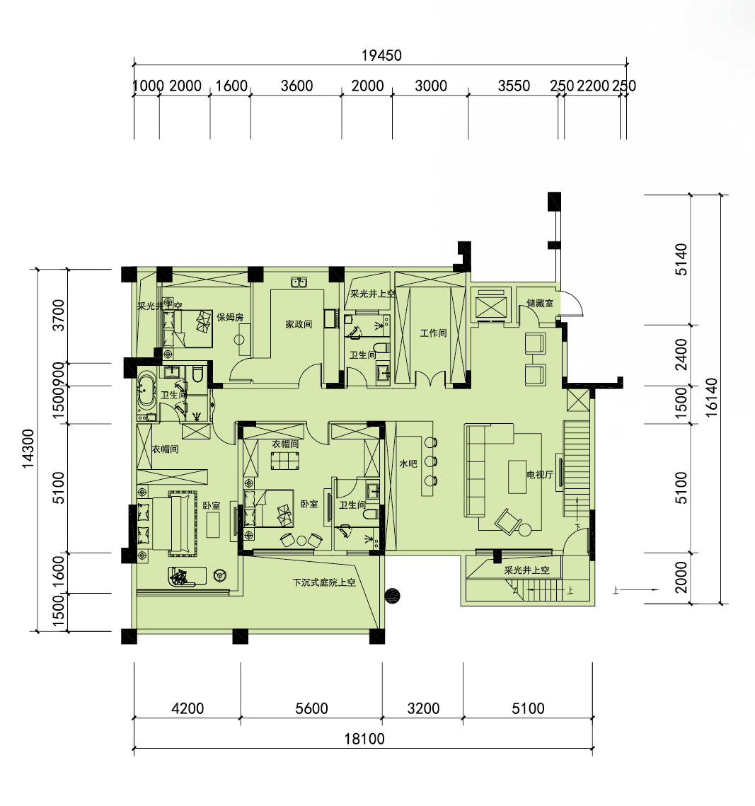
我们所说的“回归生活本真”,并不只是单纯的精神抵达,更需要身、行、物的合而为一,这其中的“物”即指的是建筑空间与阳光的温暖重构。在南湖天著小雅洋房,哪怕是硕大近乎406m²的地下室空间,同样实现以下沉式庭院与南北三大采光井的设计亮点,以充沛的阳光包围的空间,优质地呈现出一种艺术、自然、多元、温度的生活概念。

利用建筑空间形态获得室内自然采光,在建筑设计史上就有“教科书级别”的先例:勒·柯布西耶建筑大师在东京国立西洋美术馆的设计中,将自然光从顶棚引入四周的“光廊”,进而漫射入室内,酣畅淋漓地诠释了人与建筑与光之间最为舒适的关系,值得久久回味。



东京国立西洋美术馆
光,让一切美好生活有迹可循。当建筑空间遇到了光,有了光影的陪伴,便有了灵魂。
传统的地下室设计,多因采光不佳、通风不畅等问题而倍受诟病。南湖天著小雅湖山洋房,在地下空间的设计中,尽可能多地考虑自然光线的引入,分别设计了三大采光井与一个下沉式庭院,以多面采光空间,充分满足地下空间对自然阳光的渴望,赋予生活的更多想象,一如日本17世纪的俳句:“李子花的芳香/太阳出现了/照在山间小路上。”冥想一下吧,你会看到那个被光照亮的世界。
随着建筑技艺的不断进步,创新理念的不断融入,地下室已演变成为墅居生活中不可或缺的超大生活空间。南湖天著小雅湖山洋房,借助下沉式庭院,将地下室的南向一面墙打开,与之连接;室外的自然景观与明媚阳光涌进室内,无论是晴空朗照还是阴雨连绵,微风徐来,惬意盎然,较大限度地让地下室的生活生动起来,而不是一个简单传播的储藏室。

因为“沉”下去,下沉式庭院形成了一个围合空间,无形之中给人增加几分安全感。与一览无余的传统院子相比,这种含而不露的下沉式庭院则显得别有一番韵味,高低错落,给空间带来更丰富的视觉感。
当光从下沉式庭院进入室内,光线仿佛被赋予生命,为居住者演绎出富有诗意的光。阳光透过大面积玻璃涌进室内,将生活的欣喜溢满整个屋子。立于庭院由内观外,更是一种纯净剔透的生活境界。

传统地下室深埋地下,其局限性不言而喻。而南湖天著小雅湖山洋房的地下室,在南北布置了三大采光井,打破暗室空间,阳光经过玻璃的层层过滤,形成诱人的自然光,透过多重采光井,以较佳的角度进入室内,这样可以保证光线经反射后,可以更均匀地分布到每一个角落,让整个地下空间都能感受到阳光的自然气息。

南湖天著认为,光是将自然与人、与建筑融合的较先进的处理者,本着将光融入生活,为生活带来更多触动灵感的初衷。透过光,未来的洋房居者能感受到温暖和自然的力量,给生活带来更多的灵感。
想象一下,如果你喜欢图书馆,那么在阳光地下室,一边流连忘返书香之中,一边感受阳光的流走;如果你喜欢茶艺,一边午后品茗,一边感受温暖的阳光味道;如果你喜欢运动,伴着晚霞自由舒展筋骨……是一种多么舒适的享受!
将人性化思考化为实际行动,通过独特下沉式庭院与采天井设计,将阳光延展至地下,远离阴暗潮湿,呈现出采光、通风、空间三位一体的地下室空间。南湖天著小雅湖山洋房,约406m²全阳光地下室,满足你的所有的生活想象,盛下梦想与志趣。
声明:本文由入驻焦点开放平台的作者撰写,除焦点官方账号外,观点仅代表作者本人,不代表焦点立场。
